建筑设计图纸识图教程2024
101小节 已有16663人学过
课程概要
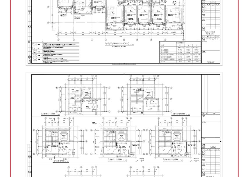
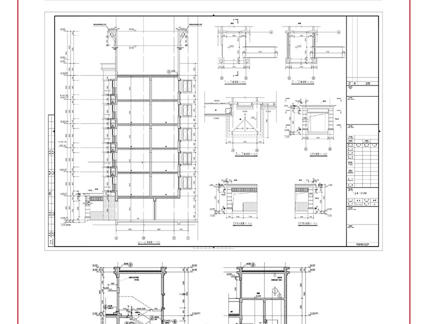
本套课程致力于从建筑专业的角度出发,带各位同学认识什么事建筑图纸,建筑图纸由那几部分组成,各部分发挥着什么样的作用。同时为大家讲解图纸中经常出现的各类符号,标注、图形、文字所代表的实际含义。
教程程度:
初级
软件版本:
CAD快速看图,CAD2014

所需基础:
有CAD基础
适合人群:
希望或正在从事建筑设计的学员
授课讲师
何鹏
建筑设计讲师
课程简介
建筑图纸的识别是从事建筑相关工作的基础,本套课程致力于从建筑专业的角度出发,带各位同学认识什么事建筑图纸,建筑图纸由那几部分组成,各部分发挥着什么样的作用。同时为大家讲解图纸中经常出现的各类符号,标注、图形、文字所代表的实际含义。不光讲解图纸的只是,同步也为大家讲解了建筑专业与各个专业的配合以及结构、给排水、暖通的建筑相关图纸知识,务求让大家对建筑识图建立一个完整的认识。
我的成功之路 更多
V
特惠充值
联系客服
APP下载
官方微信
返回顶部