天正高阶--地下部分详图绘制教程
103小节 已有26930人学过
课程概要
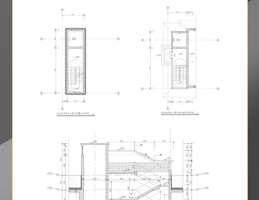
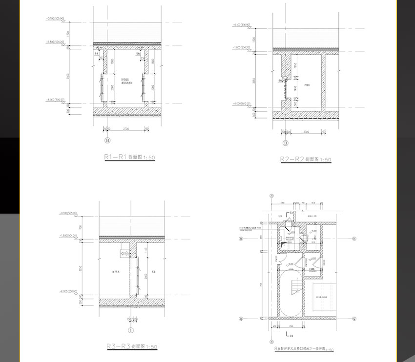
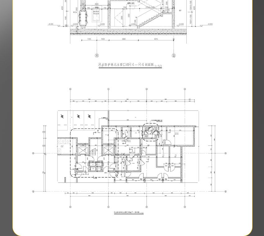
本课程根据实际案例进行完整讲解,对地下车库详图进行专项细致的绘制讲解,并对绘制过程中的问题和规范内容进行解读,让大家通过对本课程的学习,熟练的掌握地下车库详图绘制的全部流程和内容。
教程程度:
高级
软件版本:
CAD2014中文版 天正T20 ...

所需基础:
有CAD基础,天正基础
适合人群:
希望从事或正在从事建筑设计,想要了解实际工作中的地下车库建筑图纸绘制流程与方法的同学。
授课讲师
何鹏
建筑设计讲师
课程简介
本课程根据实际案例进行完整讲解,对地下车库详图进行专项细致的绘制讲解,并对绘制过程中的问题和规范内容进行解读,让大家通过对本课程的学习,熟练的掌握地下车库详图绘制的全部流程和内容。 没有地下室绘制基础的学员,建议先看本站另一套基础教程《天正进阶--住宅小区地下车库教程》。
我的成功之路 更多
V
特惠充值
联系客服
APP下载
官方微信
返回顶部